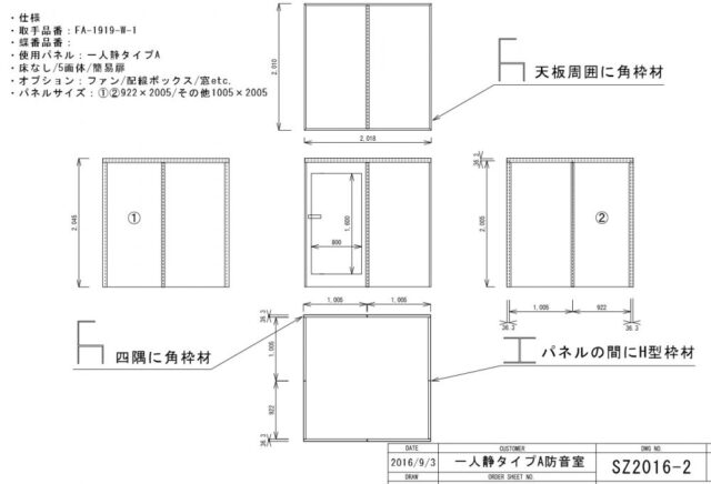
Archivesカテゴリー: ブログ 宿泊ホテルの騒音問題改善~ドアに吸音材+遮音シート 2016-09-30 会議室やオフィスの反響音対策の目安 2016-09-30 低音の騒音対策には一人静タイプL~エコキュート、室外機などに対応 2016-09-29 一人静シリーズの加工の仕方~切断方法・穴あけ方法~ 2016-09-28 集塵機(業務用大型掃除機)の騒音対策~5面体の防音ボックスを制作 2016-09-27 磁石を利用した施工~ご要望に合わせて様々な加工が可能です 2016-09-26 一人静タイプAとグラスウールの比較~弊社製品が低周波帯域でさらに20dbほど遮音 2016-09-25 株式会社「静科」へのアクセス~海老名駅編~ 2016-09-24 賃貸でも安心な防音材の貼り方~フレスコ糊で壁紙を貼り防音材を設置 2016-09-23 グラスウールを使用した防音材のデメリット 2016-09-21 組み立て式の簡易防音室~ドライバーのみで組立・解体出来ます 2016-09-15 弊社の製品(Esprit、Esprit Life、SSP)は『Amazon』で購入が… 2016-09-14 67 / 94« 先頭«...15304560...666768...7590...»最後 »Category更新情報(全ての記事)お知らせブログ動画集施工/納品事例住宅・オフィス用工業用音響用アスリート情報Archives2025202420232022202120202019201820172016201520142013201220112010